FR NL EN

Belgian Coast Resort – Duplex de luxe à Coxyde

Duplex 5 chambres – 10 personnes – 160 m² entièrement rénovés, à 50 m de la mer.

  • Vue latérale sur la mer
  • 5 chambres – 7 lits – 2 salles de bains
  • Terrasse de 30 m² côté séjour
  • Wi-Fi haut débit, TV digitale, Sonos

Un duplex de 160 m² pensé pour les séjours en famille ou entre amis

Belgian Coast Resort est un grand appartement duplex de 160 m², entièrement rénové en 2018, situé à 50 mètres de la plage de Coxyde. L’appartement se trouve à seulement 600 m du centre, dans un quartier calme, idéal pour profiter de la côte belge en toute sérénité.

L’espace peut accueillir confortablement jusqu’à 10 personnes grâce à ses 5 chambres et ses 7 lits. La décoration est moderne, chaleureuse et fonctionnelle, avec des matériaux de qualité, un éclairage soigné et des couleurs contemporaines.

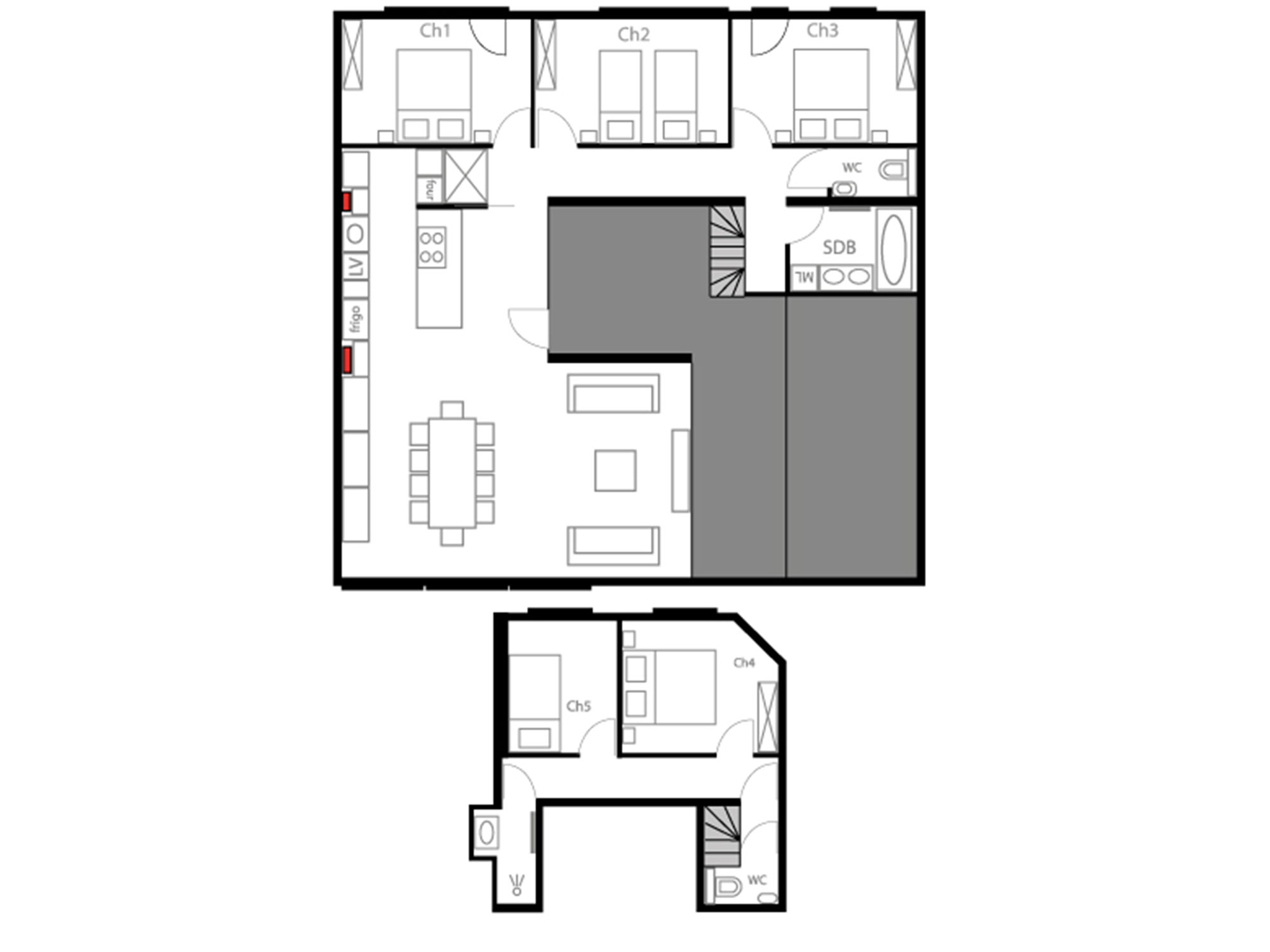
Le duplex se compose d’un niveau principal au rez-de-chaussée avec grand séjour/salle à manger, cuisine ouverte entièrement équipée, 3 chambres, 1 salle de bains avec baignoire/douche et 1 WC séparé. Le niveau inférieur (-1), accessible par un escalier interne, comprend 2 chambres supplémentaires, 1 salle de douche et 1 WC séparé. Toutes les chambres disposent d’une fenêtre ouvrante vers l’extérieur.

En un coup d’œil

  • Capacité : 10 invités
  • Surface : 160 m²
  • Chambres : 5
  • Lits : 7 (3 doubles, 2 simples, 1 lit superposé)
  • Salles de bains : 2 (1 bain + 1 douche)
  • WC : 2 WC séparés
  • Configuration : duplex rez-de-chaussée et niveau -1 (escalier interne)
  • Distance mer : 50 m
  • Terrasse : 30 m² côté séjour + balcon côté chambres
  • Animaux : non autorisés
  • Logement non-fumeur
  • 2 chaises enfant à disposition

5 chambres confortables pour 10 personnes

Les chambres sont réparties entre le niveau principal (rez-de-chaussée) et le niveau -1, tous deux équipés de sanitaires. Chaque chambre dispose d’une fenêtre ouvrante vers l’extérieur pour une excellente luminosité naturelle.

Équipements & confort

Tout est prévu pour que votre séjour soit simple et agréable : grande pièce de vie, cuisine moderne entièrement équipée, chauffage performant, literie de qualité et connexions multimédia actuelles.

📶 Wi-Fi haut débit 📺 TV digitale 🔊 Sonos 🍽️ Cuisine équipée 🛏️ Draps de lit fournis 🚿 2 salles de bains 🚻 2 WC séparés 🌡️ Chauffage au sol 🌤️ Terrasse 30 m²
🛋️

Vie & multimédia

Un grand espace pour se retrouver

  • Grand salon / salle à manger lumineux
  • Table familiale pour les repas à 10
  • TV écran plat & télévision digitale
  • Internet haut débit (Wi-Fi Proximus)
  • Système audio Sonos
  • Accès direct à la grande terrasse de 30 m²
🍳

Cuisine & repas

Tout le nécessaire sur place

  • Cuisine ouverte et moderne
  • Réfrigérateur américain (frigo / congélateur / glaçons)
  • Cuisinière électrique & four traditionnel
  • Four à micro-ondes
  • Lave-vaisselle
  • Vaisselle, verres et ustensiles pour 10 personnes
  • Grille-pain
  • Bouilloire électrique
  • Percolateur
  • Machine à capsules type Nespresso
🧺

Confort & pratique

Pensé pour les séjours en famille

  • Chauffage au sol au gaz + radiateurs dans les salles de bains
  • Salle de bains avec baignoire et paroi de douche
  • Deuxième salle de douche au niveau -1
  • Deux WC séparés (un à chaque niveau)
  • Lave-linge & aspirateur à disposition
  • Draps de lit fournis (serviettes de bain non fournies)
  • 2 chaises enfant disponibles
  • Balcon côté chambres + grande terrasse côté séjour
  • Logement non-fumeur, animaux non admis

Galerie photos

Découvrez les différents espaces du duplex : séjour lumineux, cuisine moderne, chambres spacieuses, salles de bains rénovées et extérieur agréable.

Localisation & environs

🌊 50 m de la plage 🏙️ Centre à ~600 m 🚶 Tout à pied 🚲 Pistes cyclables à proximité

Situé à seulement 50 mètres de la digue et de la plage, Belgian Coast Resort bénéficie d’une localisation idéale. Le centre de Coxyde, ses commerces et restaurants se trouvent à environ 600 m, facilement accessibles à pied.

Voir l’emplacement sur la carte

Visualisez l’emplacement exact de Belgian Coast Resort et préparez facilement vos déplacements.

Vérifiez les disponibilités et réservez en ligne

Réservez votre séjour en toute simplicité grâce à notre système de réservation sécurisé. Calendrier à jour en temps réel, paiement sécurisé et confirmation immédiate.

✔ Réservation directe ✔ Paiement sécurisé ✔ Confirmation immédiate ✔ Ménage de fin de séjour inclus
📅

Disponibilités en temps réel

Le calendrier est automatiquement mis à jour pour vous permettre de réserver aux dates réellement disponibles.

💳

Paiement sécurisé

La réservation et le paiement sont gérés via une plateforme sécurisée, simple à utiliser sur ordinateur et mobile.

Bon à savoir

  • Capacité maximale : 10 personnes
  • Draps de lit inclus – serviettes de bain non fournies
  • Ménage de fin de séjour inclus
  • Logement non-fumeur, animaux non autorisés
  • Caution et conditions d’annulation indiquées lors de la réservation
Voir les dates disponibles

Réserver votre séjour

Réservation sécurisée

Sélectionnez vos dates pour voir le prix total et réserver.

Les disponibilités varient selon la saison. Les week-ends et vacances scolaires sont souvent réservés rapidement.

Questions fréquentes

Voici les réponses aux questions les plus souvent posées à propos de Belgian Coast Resort. Si vous avez encore un doute, n’hésitez pas à nous contacter via le module de réservation.

Les clés sont accessibles à partir de 15h. La veille de votre arrivée, vous recevez un e-mail avec toutes les instructions pour récupérer les clés. L’horaire de départ est fixé à 10h. Un départ tardif jusqu’à 18h est possible pour 100€, uniquement si aucune arrivée n’est prévue le même jour. Dans ce cas, merci de me contacter en amont pour confirmation.

Oui, les draps de lit sont fournis pour tous les couchages et les lits sont faits à votre arrivée. Il est interdit de dormir sur les lits sans drap-housse, housse de couette et taies d’oreiller. En revanche, les serviettes de bain ne sont pas fournies : merci de prévoir les vôtres.

L’appartement peut accueillir jusqu’à 10 personnes. La literie se compose de :

  • 3 lits doubles
  • 2 lits simples
  • 2 lits simples superposés (lits superposés)

Oui, le ménage de fin de séjour est inclus dans le prix. Nous vous demandons simplement de :

  • Libérer l’appartement pour 10h, sauf accord pour un départ tardif,
  • Déposer les 2 trousseaux de clés sur la table et claquer la porte,
  • Faire la vaisselle et vider le lave-vaisselle,
  • Vider le frigo et emporter les restes de nourriture,
  • Enlever les draps des lits utilisés (housse de couette, drap de matelas, taies d’oreiller) et les déposer dans le couloir,
  • Vider toutes les poubelles (cuisine, WC et salles de bain) et les déposer aux emplacements prévus par la commune (voir farde noire dans le salon).

Oui. La commune et le règlement de copropriété imposent le calme entre 22h et 8h. Nous vous demandons de respecter le voisinage, en particulier lorsque vous profitez de la terrasse. Les fêtes sont strictement interdites. L’appartement doit être utilisé en bon père de famille, avec respect des lieux et des voisins.

Il y a généralement des places disponibles dans les rues voisines au prix d’environ 6€/jour. Un peu plus loin, il est possible de se garer gratuitement. Toutes les informations détaillées (zones, emplacements, consignes de la commune) se trouvent dans la farde noire située dans le salon.

Oui, il y a 2 machines à café :

  • Une machine Nespresso (prévoir vos capsules),
  • Un percolateur (prévoir du café moulu).
Réserver